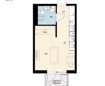
Valoisa, pihanpuoleinen yksiö lasitetulla parvekkeella 4. kerroksessa As Oy Turun Linnanmalmin Vasarassa. Linnanmalmin Vasara on joulukuussa 2023 valmistunut 7-kerroksinen talo Puutarhakadun joenpuoleisessa päässä.

Keittotilassa on astianpesukone, induktiokeittotaso, erillisuuni, jääkaappipakastin, liesikupu led-valoilla ja tilavaraus mikroaaltouunille. Kaapistossa on valkoiset ovet. Työtasot ovat tummaa laminaattia upotetulla mustalla komposiittialtaalla. Välitilassa on kiiltävä valkoinen alumiinikomposiittilevy.

Pesuhuoneen lattia on harmaata laattaa, seinät valkoista isoa vaakalaattaa ja katto tervaleppäpaneelia. Varusteina on valollinen peilikaappi, allaskaappi valkoisella valumarmorialtaalla ja kirkaslasinen suihkuseinä. Pesukoneelle ja kuivausrummulle on tilavaraus ja liitännät.

Lattiat ovat tyylikästä tammilankkulaminaattia ja seinät ovat valkoiseksi maalattuja.

Eteisessä on kaapisto valkoisin ovin ja katossa on upotettu led-valaisin. Alkovissa on kätevät valkoiset yläseinäkaapit.

Ikkunoissa ja parvekeovessa on sälekaihtimet.

Lasitettu parveke avattavin parvekelasein. Myös kaiteen alapuolinen osa on lasia, alaosassa on tiheä pystyraitakuvio näkösuojana. Parvekkeella on parvekematto, tuuletusteline, pistorasia ja valaisin.

Lämmitysmuotona on kaukolämpö ja lämmönjakotapana on miellyttävä vesikiertoinen lattialämmitys. Sisustamista haittaavia lämpöpattereita ei siis ole. Asuntokohtainen ilmanvaihtolaite lämmön talteenotolla.

Lemmikit ovat pääsäännön mukaan kiellettyjä, mutta alle 10 kg sisäsiististä lemmikistä voidaan erikseen neuvotella.

Talo on savuton, joten tupakointi huoneistoissa, parvekkeilla ja talon yhteisissä sisätiloissa on kielletty. Pihalla on erikseen osoitettu tupakointipaikka.

Vuokraan sisältyy Telia 10M -laajakaistayhteys, joka on edullisesti päivitettävissä nopeammaksi!

Linnanmalmin Vasaran sekä Linnanmalmin Teräksen ja Linnanmalmin Ahjon yhdistää viihtyisä pihakansi istutus-, leikki- ja oleskelualueineen.

Sijainti on mainio. Lähikaupoista Sale Kompassi on noin 750 metrin ja K-Market Portsa 850 metrin päässä. Jokirantaan on matkaa vain noin 700 metriä. Ydinkeskustaan pyöräilee 7 minuutissa ja yliopiston/TYKSin alueelle alle vartissa. Lähin linja-autopysäkki sijaitsee noin 450 metrin päässä Linnankadulla, josta bussit kulkevat keskustaan noin 10 minuutin välein. Lisäksi Puutarhakadun pysäkiltä, noin 500 metrin etäisyydeltä, pääset kätevästi sekä Ruissalon upeaan luontoon että keskustan palveluiden äärelle. Lisätietoa reiteistä ja aikatauluista löydät Fölin reittioppaasta osoitteesta https://www.foli.fi/fi/aikataulut-ja-reitit

Yhteiskäyttöautona Vasaran sekä naapuritalojen Teräksen ja Ahjon asukkaiden käytössä on automaattivaihteinen Volkswagen e-up! -täyssähköauto! Yhteiskäyttöautolla on oma parkkiruutu talojen pihalla. Auton varaus ja käyttöönotto tapahtuu matkapuhelimeen ladattavan Omago-sovelluksen avulla. Autoa voi käyttää kaikkiin päivittäisiin tarpeisiin, kuten kauppareissuihin tai vierailuihin ystävien luona. Käytön hinta on 6 €/h tai 50 €/vrk. Yli 24h vuokraukset 2,08 €/h (sis. alv 25,5 %). Hinnat ovat voimassa toistaiseksi.

Vasaran asukkailla on mahdollisuus vuokrata myös autopaikka. Autopaikkoja on kolmenlaisia;
- katospaikka hybridi-/sähköauton latauspisteellä (maksimiteho 22 kW, kuormanhallinta) 50 euroa/kk + sähkö kulutuksen mukaan
- katospaikka lämmitystolpalla 30 euroa/kk
- pihapaikka lämmitystolpalla 20 euroa/kk
Katospaikat sijaitsevat pihakannen alla. Autopaikkoja on rajallisesti, joten kysy paikkojen tilanne välittäjältä!

TÄYTÄ HAKEMUS NETISSÄ TAI SOVI ESITTELY! Asunnon Puutarhakatu 59 as 25 hakemuksen voi täyttää sivuillamme osoitteessa https://avori.fi/hakemus/.




HUOM! Jätä yhteystietosi oheisella yhteydenottolomakkeella niin ilmoitamme esittelyajan sinulle tekstiviestillä heti sen selvittyä. Mikäli esittelyaika on jo näkyvillä, esittelyyn ei tarvitse enää erikseen ilmoittautua.
Perustiedot
Sijainti
Puutarhakatu 59, Turku
Alue
keskusta
Kerros
4 / 7
Pinta-ala
28,0 m²
Kuvaus
1 h + kt + alk + ph
Huoneluku
yksiö
Kunto
erinomainen
Parveke
lasitettu parveke
Rakennusvuosi
2023
Erityisehdot
Vuokralaisella on oltava kotivakuutus vastuuosineen, Tupakointi sisällä on kielletty, Lemmikit sopimuksen mukaan (lemmikit on mainittava hakemuksen lisätiedoissa).
Vapautuu
Vuokra-aika
Vapaa 1.4.2026, toistaiseksi voimassa oleva vuokrasopimus, joka on mahdollista irtisanoa päättymään vuoden kuluttua sen alkamisesta, aikaisemmasta irtisanomisesta sopimussakko on yhden kuukauden vuokraa vastaava summa
Hintatiedot ja muut kustannukset
Vuokra
625,00 €/kk
Vuokravakuus
1 250,00€
Vesimaksu
Vesi kulutuksen mukaan (ennakko 20,00 €/hlö/kk).
Sähkömaksu
Sähkö kulutuksen mukaan (oma sopimus).
Kohteen kuvaus
Talotyyppi
kerrostalo
Taloyhtiö
As Oy Turun Linnanmalmin Vasara
Keittiön kuvaus
valkoiset kodinkoneet: astianpesukone, induktiokeittotaso, erillisuuni kiertoilmatoiminnolla, jääkaappipakastin, liesikupu led-valoilla, tilavaraus mikroaaltouunille, välitilassa led-valaisin sekä valkoinen alumiinikomposiittivälitilalevy, työtasot tummaa laminaattia upotetulla mustalla komposiittialtaalla, hana korkealla juoksuputkella, kaapit puhtaan valkoisin ovin
Saniteettitilojen kuvaus
lattia harmaata 10x10 laattaa, seinät valkoista himmeää 20x40 vaakalaattaa, katto tervaleppäpaneelia, peilikaappi led-valaisimella ja pistorasialla, valkoinen allaskaapisto valkoisella valumarmorialtaalla, allashana bideesuihkulla, wc-istuin, suihku ja suihkuteline, kääntyvä suihkuseinä kirkkaalla lasilla, liitännät ja tilavaraus pesukoneelle ja kuivausrummulle
Lattiamateriaalien kuvaus
tammilankkulaminaattia (Lamella Classic Light Brushed Oak), jalkalistat valkoiseksi maalatut
Laajakaista
Laajakaista taloyhtiön päätöksien mukaisesti. Vuokra-ajan alkaessa vuokraan sisältyy Telia 10M -laajakaistayhteys, josta vuokralainen tekee oman sopimuksen operaattorin kanssa.
Antennijärjestelmä
kaapeli-tv
Autopaikat
lisätiedot Avorista
Hissi
On
Lämmitys
kaukolämpö
Energialuokka
B2018
Yhteiset tilat
ulkoiluvälinevarasto, irtaimistovarasto